0N4 Carbondale
Downtown Carbondale, Colorado
Type: Mixed-Use
Phase: Entitlements
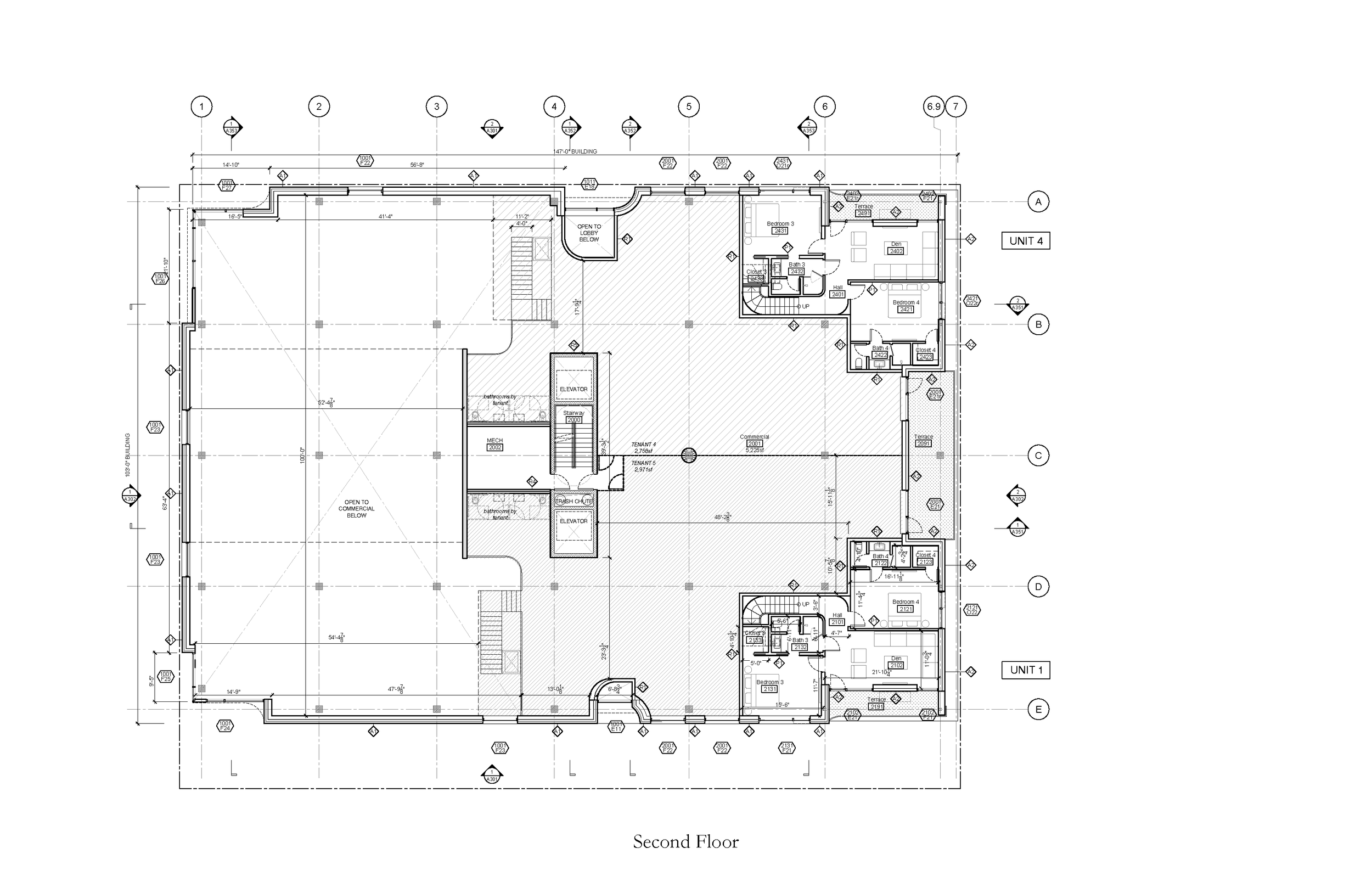
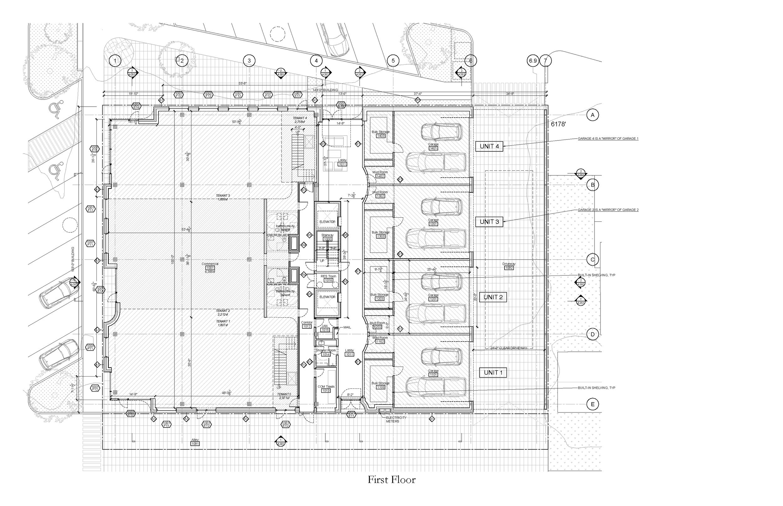
0N4 is a mixed-use project with a program of flexible commercial spaces with four high-end, penthouse residential condos above.
Located on a high-profile corner lot in the Historic core of the Town of Carbondale, the proposed project is a thoughtfully designed and well-crafted building a block from the center of downtown.
The exterior design includes contextual masonry facades with traditional proportioning balanced by contemporary articulation and detailing.
The interior design concepts include loft-like spaces in both the ground floor commercial and the third floor residential.
Approx. 30,000 gross SQFT
Flexible commercial plan
4 residential condo units
Personal garages and storage per unit
Generious private exterior terraces

